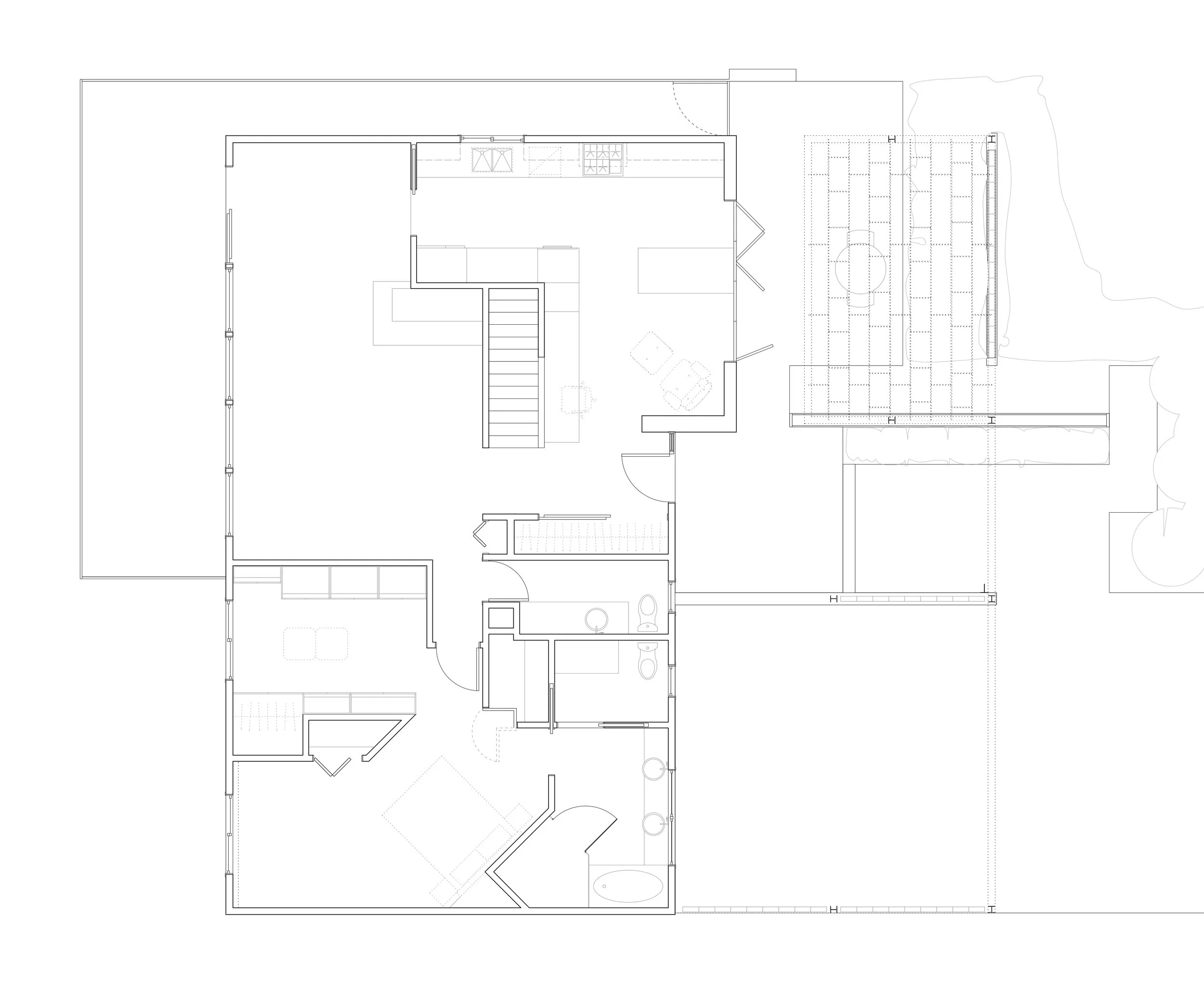
moreland Burnaby, BC | 2016 | 3,700 sf photos by Sama Canzien View fullsize View fullsize View fullsize View fullsize View fullsize View fullsize View fullsize View fullsize View fullsize View fullsize View fullsize View fullsize View fullsize View fullsize View fullsize